Cadastre-se AGORA para receber informações
XTambém Odiamos Spam!
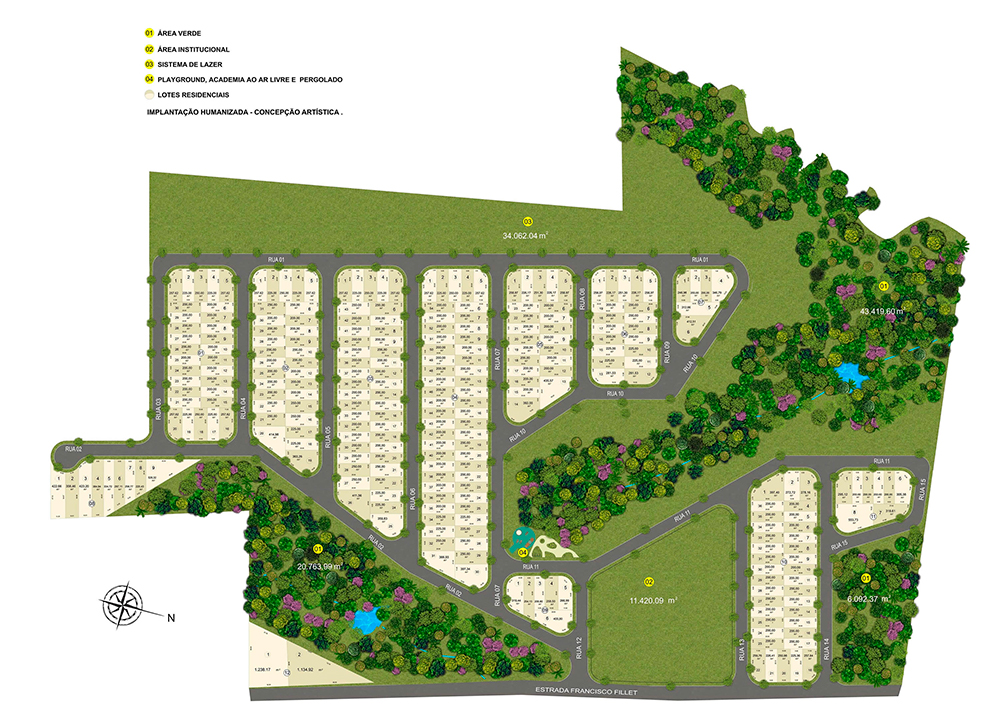
Qualidade de vida, cercada de muito verde!
Conheça o RESIDENCIAL BELMONTE, lotes a partir de 300m², financiamento em até 144 MESES direto com o loteador e escritura imediata!
Próximo a av. Laranjal Paulista, região que conta com importantes condomínios fechados, vários loteamentos abertos que se interligam em bairros, mas que conservam o ar puro, o silêncio, a fauna e a flora característicos da região.
Promoção especial com até 25% de desconto à vista ou pagamento em até 48 parcelas sem juros!
Você ainda conta com a possibilidade de financiar seu terreno e construção e realizar seu sonho da CASA PRÓPRIA em uma ótima localização.
Loteamento registrado sob o R7 da Matrícula 90.075, do 2º Oficial do registro de Imóveis de Piracicaba.
Infraestrutura
completa
• Asfalto
• Guias
• Sargetas
• Rede de coleta de esgoto
• Drenagem
• Rede de energia elétrica
• Arborização
• Rede de água potável
Bairro com
total autonomia
• Supermercados e varejão
• Restaurantes
• Farmácia
• Igrejas
• Linhas de ônibus
Extensa
área verde
• Ar puro
• Jardim natural
• Academia ao ar livre
• Playground
• E muito verde!
